TSB - Transportation Safety Board of Canada

01/04/2008 | Press release | Archived content

Sortie en bout de pistedu British Aerospace Jetstream 3212 C-FNAEexploité par Northwestern Air Lease Limitedà Fort Smith (Territoires du Nord-Ouest)

Sortie en bout de piste
du British Aerospace Jetstream 3212 C-FNAE
exploité par Northwestern Air Lease Limited
à Fort Smith (Territoires du Nord-Ouest)

le 4 janvier 2008

Le Bureau de la sécurité des transports du Canada (BST) a enquêté sur cet événement dans le but de promouvoir la sécurité des transports. Le Bureau n'est pas habilité à attribuer ni à déterminer les responsabilités civiles ou pénales. Le présent rapport n'est pas créé pour être utilisé dans le contexte d'une procédure judiciaire, disciplinaire ou autre. Voir Propriété et utilisation du contenu. Les pronoms et les titres de poste masculins peuvent être utilisés pour désigner tous les genres afin de respecter la Loi sur le Bureau canadien d'enquête sur les accidents de transport et de la sécurité des transports(L.C. 1989, ch. 3).

Table des matières

Résumé

Le Jetstream 3212, immatriculé C FNAE et portant le numéro de série 881, exploité par Northwestern Air Lease Limited sous l'indicatif PLR 599 se prépare à atterrir à Fort Smith (Territoires du Nord Ouest) après un vol selon les règles de vol aux instruments à partir d'Edmonton (Alberta). Pendant l'atterrissage sur la piste 29, à 15 h 2, heure normale des Rocheuses, l'avion sort en bout de piste et s'immobilise à 367 pieds du seuil et à 60 pieds à gauche de l'axe de piste. Il y a environ 18 pouces de neige à l'endroit du dépassement de piste. Seul l'hélice numéro deux est endommagée et personne n'est blessé parmi les 2 pilotes et 16 passagers.

Renseignements de base

Les conditions météorologiques signalées à 15 h, heure normale des Rocheuses (HNR)Footnote 1, étaient les suivantes : vent de 130 degrés vrai (V) à 4 nœuds, visibilité de 5/8 mille terrestre (sm) dans de la neige légère et de la brume, ciel couvert à 500 pieds, température de 5 °C, point de rosée de 6 °C, calage altimétrique de 29,07 pouces de mercure, remarques : 4 octasFootnote 2 de neige, 4 octas de stratocumulus. Un bulletin météorologique spécial publié à 15 h 21 (19 minutes après l'événement) indiquait les conditions suivantes : vent de 130° V à 5 nœuds, visibilité de ½ sm dans de la neige et un brouillard givrant, ciel couvert nuageux à 400 pieds, remarques : 5 octas de neige, 3 octas de stratocumulus.

Selon les calculs, la masse à l'atterrissage était de 14 595 livres, en deçà de la masse maximale à l'atterrissage de 15 609 livres. Le centre de gravité se situait dans les limites.

Les deux pilotes possédaient les certifications et les qualifications requises conformément à la réglementation en vigueur. Le commandant de bord était titulaire d'une licence de pilote de ligne valide et totalisait 6383 heures de vol, dont 1291 sur type. Le copilote était titulaire d'une licence de pilote professionnel et avait à son actif 2000 heures de vol, dont 1300 sur type. Le temps de vol et de service de l'équipage de l'avion était conforme à la réglementation en vigueur. Le commandant de bord était en service depuis 8,5 heures avant l'accident et il avait bénéficié de 10 heures de repos avant de se présenter au travail. Quant au copilote, il était en service depuis 6,5 heures avant l'événement et avait bénéficié de 21 heures de repos avant de se présenter au travail. Fort Smith étant la base principale de l'entreprise, l'équipage de l'avion connaissait l'aéroport.

Il est possible d'exécuter trois approches aux instruments de non-précision à cet aéroport : une approche NDB de la piste 29, une approche VOR (GNSS) de la piste 11 et une approche de VOR/DME (GNSS) de la piste 29Footnote 3. La piste 11/29 est asphaltée et présente une longueur de 6000 pieds et une largeur de 200 pieds. Un indicateur visuel de pente d'approche (VASIS 2) à deux barres donne de l'information sur la trajectoire de descente. Dans la portion à vue de l'approche finale, le VASIS indique une trajectoire de descente optimale de 3 degrés pour atterrir dans la zone de toucher des roues à l'intérieur des 2000 premiers pieds de la piste. Tout le balisage du terrain d'aviation a été vérifié après l'événement et il fonctionnait normalement.

À 13 h 59 (63 minutes avant l'arrivée de PLR 599), le personnel d'entretien de l'aéroport a effectué une inspection de l'état de la surface de la piste 29. Un compte rendu de l'état de la surface pour les mouvements d'aéronefs (AMSCR) s'appuyant sur cette inspection a été publié sur la station radio d'aérodrome communautaire (CARS) à 14 h 13. Le compte rendu indiquait que la piste était recouverte à 70 % de 1/8 de pouce de neige et à 30 % de givre, que du sable avait été épandu sur les 100 pieds de la partie centrale de la piste, et que le coefficient canadien de frottement sur piste (CRFI)Footnote 4 était de 0,34. À 14 h 30, les opérations de déneigement et de balayage ont commencé sur les 100 pieds de la partie centrale de la piste. Il a été rapporté que les opérations de balayage avaient un effet de polissage sur la fine couche de neige adhérant à la piste. La neige et le sable préalablement épandu ont été enlevés par cette opération. Le vol PLR 599 allait atterrir bientôt; donc, l'équipement d'entretien de la piste a libéré la piste à 14 h 56 et un compte rendu sur l'état de la piste a été envoyé à la CARS. À ce moment, on estimait que les 50 à 60 pieds de la partie centrale de la piste avaient été déblayés. Il ne restait pas assez de temps pour sabler à nouveau ou vérifier le frottement avant l'arrivée de PLR 599.

À 15 h 22, 19 minutes après l'événement, un compte rendu de l'état de la surface de la piste indiquait les conditions suivantes : les 100 pieds de la partie centrale de la piste étaient recouverts à 70 % de 1/8 pouce de neige et à 30 % de givre. Les autres 100 pieds de la piste étaient recouverts à 100 % de ¾ de pouce de neige folle et présentaient un CRFI de 0,18.

Le manuel d'exploitation de l'aéroport de Fort Smith, qui a été approuvé par Transports Canada, précise les conditions pour signaler un CRFI. Entre autres conditions, les comptes rendus doivent être faits :

  • au moins une fois durant chaque quart de travail de 8 heures;
  • à chaque fois qu'un changement important touche l'état de la surface de la piste;
  • à chaque fois que de la neige ou de la glace est éliminée sur les pistes;
  • lorsque la partie dégagée de la piste est inférieure à 100 pieds de largeur;
  • après le balayage, le sablage ou à la suite de conditions givrantes.

L'équipage de l'avion est entré en communication avec la CARS à 14 h 54 et l'aéroport lui a fourni des renseignements, notamment le compte rendu de l'état de la surface de la piste à 14 h 13 (AMSCR 1359). Aucun autre contact avec la CARS n'a eu lieu avant l'événement.

Le commandant de bord, assis en place gauche, était aux commandes (PF). Le copilote n'était pas aux commandes (PNF). L'approche choisie était l'approche VOR/DME (GNSS) de la piste 29. L'équipage de l'avion l'avait choisie pour sa hauteur minimale d'approche plus basse et pour des raisons pratiques, compte tenu de la trajectoire de rapprochement de l'aéroport. L'avion a survolé le repère d'approche initial, AVPUB, à l'altitude minimale de 2100 pieds au dessus du niveau de la mer (asl). Sa trajectoire de rapprochement et ses altitudes ont été conformes jusqu'à ce qu'il survole le repère d'approche final SMITH (voir la figure 1). L'avion était en descente continue et le profil de descente est demeuré au-dessus de l'altitude minimale de descente par paliers pendant les dernières étapes de l'approche.

Figure 1. Profil d'approche

Au repère SERBA 2,3 DME, l'avion était de 200 à 300 pieds au-dessus de l'altitude de passage minimale de 1100 pieds asl. Conformément aux procédures d'utilisation normalisées (SOP), l'équipage avait établi la vitesse à 10 nœuds de plus que la Vref de 112 nœudsFootnote 5 parce qu'on avait constaté une légère accumulation de glace sur les entrées d'air des moteurs pendant la descente.

La visibilité signalée au sol était inférieure à la visibilité recommandée par le CAPFootnote 6. Cependant, les feux stroboscopiques d'identification de piste ou de prolongement dégagé ont été visibles entre 1 et 1,5 DME. Le commandant de bord a alors effectué une transition au vol à vue et a demandé que le réglage des volets soit augmenté de 20 à 35 degrés. À ce moment-là, l'avion se trouvait entre 1200 et 1300 pieds asl, soit entre 200 et 300 pieds au-dessus de l'altitude minimale de descente de l'approche, et à une distance approximative de 0,3 à 0,8 mille marin (nm) du point d'approche interrompue. Lorsque le VASIS est devenu visible à environ 1000 pieds du seuil de piste, il affichait quatre feux blancs, ce qui indiquait que l'avion était au dessus de la trajectoire de descente optimale pour un atterrissage normal. À ce moment-là, l'avion était à 500 pieds agl. Dans une tentative visant à regagner la trajectoire de descente optimale par rapport au VASIS, la puissance des moteurs a été réduite et l'angle de descente s'est accru. La vitesse indiquée a augmenté de 132 à 137 nœuds.

Lorsque le VASIS est devenu visible, le copilote a informé le commandant de bord que l'approche de l'avion était trop haute. Ils ont continué l'approche et aucun des deux pilotes n'a proposé une remise des gaz.

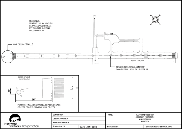
L'avion s'est posé sur l'axe de piste à environ 2600 pieds du seuil (voir l'annexe A - Plan du site). Il restait environ 3400 pieds de piste pour immobiliser l'avion. La vitesse indiquée à l'atterrissage était d'environ 120 nœuds, soit 8 nœuds au-dessus de la vitesse indiquée recommandée dans le manuel de vol de l'avion (AOM). Les manettes de gaz ont été ramenées au ralenti et après que l'avion a ralenti à 90 nœuds, l'inversion de poussée a été actionnée conformément aux procédures du manuel de vol. Le freinage maximal avec antidérapage a suivi. On a signalé que le freinage était mauvais pendant la course à l'atterrissage. Lorsque l'avion a dépassé la surface asphaltée, le PF a fait tourner l'avion à gauche pour éviter les feux d'approche de la piste 11. Pendant le virage, l'hélice droite a touché la neige et l'extrémité de ses quatre pales s'est recourbée. L'avion n'a subi aucun autre dommage. Le fonctionnement à vide du moteur droit a permis d'évacuer de la vapeur qui émanait de ce moteur en raison d'une ingestion de neige. Le commandant de bord a expliqué la situation aux passagers et des véhicules les ont évacués en 15 minutes.

Pour un seuil de piste survolé à 50 pieds de hauteur, une piste sèche et dégagée, une altitude pression d'aéroport de 1521 pieds asl, une masse à l'atterrissage de 14 595 livres et une composante vent arrière de 4 nœuds, l'AOM du Jetstream 3200 indique une distance d'atterrissage de 2550 pieds. Si l'on ajuste la distance d'atterrissage sans facteur de correction en fonction d'un CRFI de 0,34, elle augmente à 4846 piedsFootnote 7, avec une course à l'atterrissage de 3850 pieds. Dans le cas d'un CRFI de 0,18, la distance d'atterrissage serait de 5695 pieds avec une course à l'atterrissage d'environ 4700 pieds.

Sabler à nouveau les surfaces glacées après le balayage aurait augmenté le CRFI à environ 0,30Footnote 8.

La distance d'atterrissage et la course à l'atterrissage avec un vent de face de 4 nœuds étaient de 2400 pieds et d'environ 1400 pieds sur une piste sèche et dégagée. Avec le même vent de face de 4 nœuds, la distance d'atterrissage et la course à l'atterrissage dans le tableau pour un CRFI de 0,18 auraient été d'environ 5400 pieds et de 4400 pieds.

Les SOP de l'entreprise concernant le Jetstream 3212 indiquaient que la vitesse d'approche ne devait pas dépasser la vitesse applicable au seuil de piste de plus de 15 nœuds au cours d'un atterrissage normal avec un réglage des volets à 35 degrés, car au-delà, le risque de dépassement de piste devenait beaucoup trop élevé. S'il semble que la vitesse au seuil de piste va dépasser cette valeur et qu'on sait que l'état de la piste est critique, il faut abandonner la tentative d'atterrissage. Les SOP indiquent également que dans le cas des atterrissages sur des pistes glissantes, la distance d'atterrissage doit être calculée à l'aide du tableau de distance d'atterrissage de l'AOM ainsi que des limites de vent de travers en fonction des CRFI. L'entreprise n'avait pas fourni de fiche de consultation rapide dans le poste de pilotage, ni de tableau de référence de CRFI, pour calculer la distance d'atterrissage nécessaire. L'équipage n'a pas pris en compte les distances d'atterrissage modifiées selon le CRFI dans son exposé d'approche.

Après l'événement, l'alimentation des batteries n'a pas été interrompue et le disjoncteur de l'enregistreur de la parole dans le poste de pilotage (CVR) n'a pas été tiré. La partie de l'enregistrement portant sur la descente et l'approche initiale a été oblitérée, et seulement trois des 30 minutes disponibles de l'enregistrement étaient utiles à l'enquête. Les SOP de l'entreprise ne comprenaient pas d'instructions concernant la préservation des données du CVR après un événement.

Analyse

La visibilité recommandée ne peut pas empêcher la poursuite d'une approche aux instruments à Fort Smith. L'équipage n'avait aucune difficulté à discerner des repères visuels utiles autour de la piste et le long de la trajectoire de descente pour déterminer la position de l'avion. Malgré une visibilité au sol inférieure à la visibilité recommandée pour l'approche, l'équipage a aperçu le VASIS à environ 1,5 DME, soit une visibilité en vol approximative de 1 sm. La visibilité n'a pas été un facteur important dans la décision de l'équipage de continuer l'approche lorsqu'il s'est rendu compte que l'avion était mal positionné pour atterrir en toute sécurité.

Lorsque le VASIS est devenu visible, l'avion était au-dessus de la trajectoire de descente optimale pour pouvoir se poser dans les premiers 1000 pieds de la piste. Pour tenter de rejoindre la trajectoire de descente, le pilote a laissé la vitesse indiquée augmenter d'au moins 20 nœuds de plus que la Vref. Quand l'avion a finalement décéléré à une vitesse lui permettant de se poser fermement, il avait survolé une partie importante de la piste. Les 3400 pieds restants de la piste auraient suffi à immobiliser l'avion si celle-ci avait été dégagée et sèche et si l'atterrissage avait eu lieu à Vref ou à une vitesse s'y rapprochant. Cependant, l'immobilisation de l'avion n'était pas assurée, compte tenu d'une vitesse plus élevée à l'atterrissage et d'une piste présentant un CRFI situé entre 0,18 et 0,34. Les tableaux CRFI donnant des distances d'atterrissage prudentes sont préparés pour permettre aux équipages des avions d'envisager des options d'atterrissage en tenant compte des performances de leur avion. Consulter les tableaux CRFI avant l'approche aurait sûrement poussé l'équipage du PLR 599 à interrompre l'atterrissage alors que la vitesse indiquée et l'altitude de l'avion dépassaient les valeurs normales.

Après l'atterrissage, les manettes de gaz ont été ramenées en position de ralenti. Il n'y avait que la traînée aérodynamique pour freiner l'avion avant que la décélération n'atteigne 90 nœuds et que l'inversion de poussée maximale et le serrage des freins des roues soient actionnés. Ce délai avant le freinage maximal a fait en sorte qu'il restait encore moins de piste. Puisque le coefficient de frottement de la surface de la piste était très bas, le serrage des freins des roues a eu un effet minimal sur le freinage.

Malgré la présence d'un léger vent de 4 nœuds, celui-ci constituait une composante vent arrière pratiquement directe dans le cas de la piste 29. Dans le tableau, la distance d'atterrissage sur une piste dégagée et sèche avec un vent de face de 4 nœuds était d'environ 300 pieds plus courte que celle sur une piste avec une composante vent arrière et un CRFI de 0,18. Si tous les facteurs avaient été les mêmes pour un atterrissage sur la piste 11 avec un vent de face, la distance d'atterrissage aurait été réduite au point où il n'y aurait peut-être pas eu de sortie en bout de piste.

L'équipage a décidé de continuer l'approche même lorsqu'il était devenu évident que l'avion était au dessus de la trajectoire d'approche et ne pouvait pas atterrir dans la première partie de la piste. Si les SOP avaient été respectées, l'atterrissage aurait été interrompu lorsque la vitesse d'approche a dépassé la Vref de 15 nœuds.

Il est probable que les activités d'entretien de la piste, effectuées peu avant l'arrivée de PLR 599, ont eu pour effet de créer une surface ayant un bas coefficient de frottement. La nouvelle opération de sablage après le balayage aurait augmenté le CRFI et réduit la distance d'atterrissage de l'avion. L'évaluation du CRFI n'ayant pas eu lieu après le balayage de la piste en raison du court délai avant l'arrivée de PLR 599, l'équipage ne savait pas que le coefficient de frottement avait baissé.

Faits établis

Faits établis quant aux causes et aux facteurs contributifs

  1. Le profil de descente de l'approche finale était au-dessus de la trajectoire d'approche optimale pour un atterrissage dans la zone de toucher des roues de la piste. L'avion a atterri à environ 3400 pieds de l'extrémité de la piste, une distance insuffisante pour immobiliser l'avion sur une surface glissante.
  2. La vitesse indiquée pendant l'approche et l'atterrissage était beaucoup plus élevée que la vitesse recommandée. La vitesse élevée et le vent arrière ont contribué à un atterrissage à un point sur la piste où la distance était insuffisante pour immobiliser l'avion.
  3. L'inversion de la poussée et le serrage maximal des freins des roues ont été retardés jusqu`à ce que la traînée aérodynamique ait ralenti l'avion de sa vitesse d'atterrissage de 120 nœuds à une vitesse de 90 nœuds. La course à l'atterrissage pendant cette période a fait en sorte qu'il restait moins de piste pour prendre des mesures de freinage actives.
  4. Consulter les tableaux des CRFI avant d'entamer l'approche aurait poussé l'équipage à penser à interrompre l'atterrissage lorsque la vitesse indiquée et la hauteur ont dépassé les valeurs normales.
  5. Avant l'atterrissage du vol PLR 599, le personnel d'entretien de piste a éliminé une légère couche de neige et le sable préalablement épandu. Ces opérations ont eu pour résultat un coefficient de frottement sur piste très bas qui n'a pas été mesuré ou signalé à l'équipage de l'avion.

Autre fait établi

  1. Après l'événement, on n'a pas coupé l'alimentation électrique de l'enregistreur de la parole dans le poste de pilotage, ce qui a oblitéré l'enregistrement de la descente initiale et du début de l'approche aux instruments. Ainsi, les données de l'enregistreur de la parole dans le poste de pilotage concernant ces parties du vol n'étaient pas disponibles pour l'enquête.

Mesures de sécurité

L'entreprise a mis en place un programme de formation des pilotes amélioré mettant l'accent sur la gestion des ressources de l'équipage, les approches stabilisées, la prise de décisions relativement aux approches interrompues et la maîtrise de la vitesse indiquée en approche. De plus, des fiches de consultation rapide indiquant la distance d'atterrissage nécessaire ont été ajoutées dans les postes de pilotage des appareils Jetstream de l'entreprise, et la distance d'atterrissage nécessaire devait être comprise dans les exposés précédant l'atterrissage.

Le BST est encouragé par ces mesures. Le présent événement présentait beaucoup de similitudes avec la sortie en bout de piste d'un appareil d'Air France à l'aéroport international Lester B. Pearson de Toronto en 2005. Dans cet accident, la prise de décision des pilotes et la connaissance des distances d'atterrissage ont joué un rôle important dans le résultat. Le Bureau a fait deux recommandations qui sont toujours actives, soit A07-03 - Prise de décision du pilote, et A07-05 - Prise en compte de la distance d'atterrissage, à la suite de cet accident (rapport d'accident A05H0002).

Le spécialiste de l'entretien aéroportuaire de l'aéroport de Fort Smith a indiqué qu'il signalera les comptes rendus de l'état de la surface de la piste après une vérification visuelle de la piste pendant les opérations de déneigement.

Le présent rapport met un terme à l'enquête du Bureau de la sécurité des transports du Canada (BST) sur cet événement. Le Bureau a autorisé la publication du rapport le 11 février 2009.

Annexes

Annexe A - Plan du site

Notes de bas de page

Note de bas de page 1

Les heures sont exprimées en heures normales des Rocheuses (temps universel coordonné moins 7 heures).

Retour à la référence de la note de bas de page 1

Note de bas de page 2

Un octa correspond à une couche nuageuse ou à un phénomène obscurcissant occupant un huitième de la voûte céleste.

Retour à la référence de la note de bas de page 2

Note de bas de page 3

NDB = radiophare non directionnel; VOR = radiophare omnidirectionnel à très haute fréquence; GNSS = système mondial de navigation par satellite; DME = équipement de mesure de distance

Retour à la référence de la note de bas de page 3

Note de bas de page 4

Le CRFI est une mesure des forces de décélération agissant sur un véhicule lorsque les freins sont appliqués. On indique le coefficient par une valeur située entre zéro et un. Un coefficient de 1 représente la capacité de décélération maximale théorique du véhicule sur une surface sèche, alors qu'un coefficient de frottement de zéro représente un mauvais freinage. Les tableaux, publiés dans le Manuel d'information aéronautique de Transports Canada et le Supplément de vol du Canada sont prudents et supposent une hauteur au seuil de piste de 50 pieds, une approche stabilisée à V ref avec un angle de descente de trois degrés, un délai minimal avant le toucher du train avant, un délai minimal avant la sortie des déporteurs sol et un serrage des freins et/ou l'inversion de pas de l'hélice et/ou l'inversion de poussée, ainsi que le freinage maximal soutenu jusqu'à l'arrêt.

Retour à la référence de la note de bas de page 4

Note de bas de page 5

La Vref est la vitesse de survol du seuil de piste avec les deux moteurs en marche. Elle est calculée en fonction de la masse de l'avion et du réglage des volets (manuel de vol du Jetstream de la série 3200 de BAE, section 7).

Retour à la référence de la note de bas de page 5

Note de bas de page 6

CAP = Canada Air Pilot

Retour à la référence de la note de bas de page 6

Note de bas de page 7

Tiré du Tableau du Coefficient canadien de frottement sur piste (CRFI) Distances d'atterrissage recommandées (sans effet de disque/inversion de poussée), Manuel d'information aéronautique de Transports Canada.

Retour à la référence de la note de bas de page 7

Note de bas de page 8

Tiré du tableau de Plage probable des CRFI en fonction du type de surface, Manuel d'information aéronautique de Transports Canada.

Retour à la référence de la note de bas de page 8

TSB - Transportation Safety Board of Canada published this content on January 04, 2008, and is solely responsible for the information contained herein. Distributed via Public Technologies (PUBT), unedited and unaltered, on December 05, 2025 at 18:24 UTC. If you believe the information included in the content is inaccurate or outdated and requires editing or removal, please contact us at [email protected]